Baugemeinschaft Inselkiez

Vielfältige Wohnstrukturen in Wilhelmsburg

Vielfältige Wohnstrukturen in Wilhelmsburg

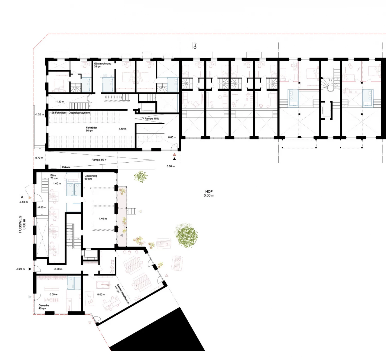
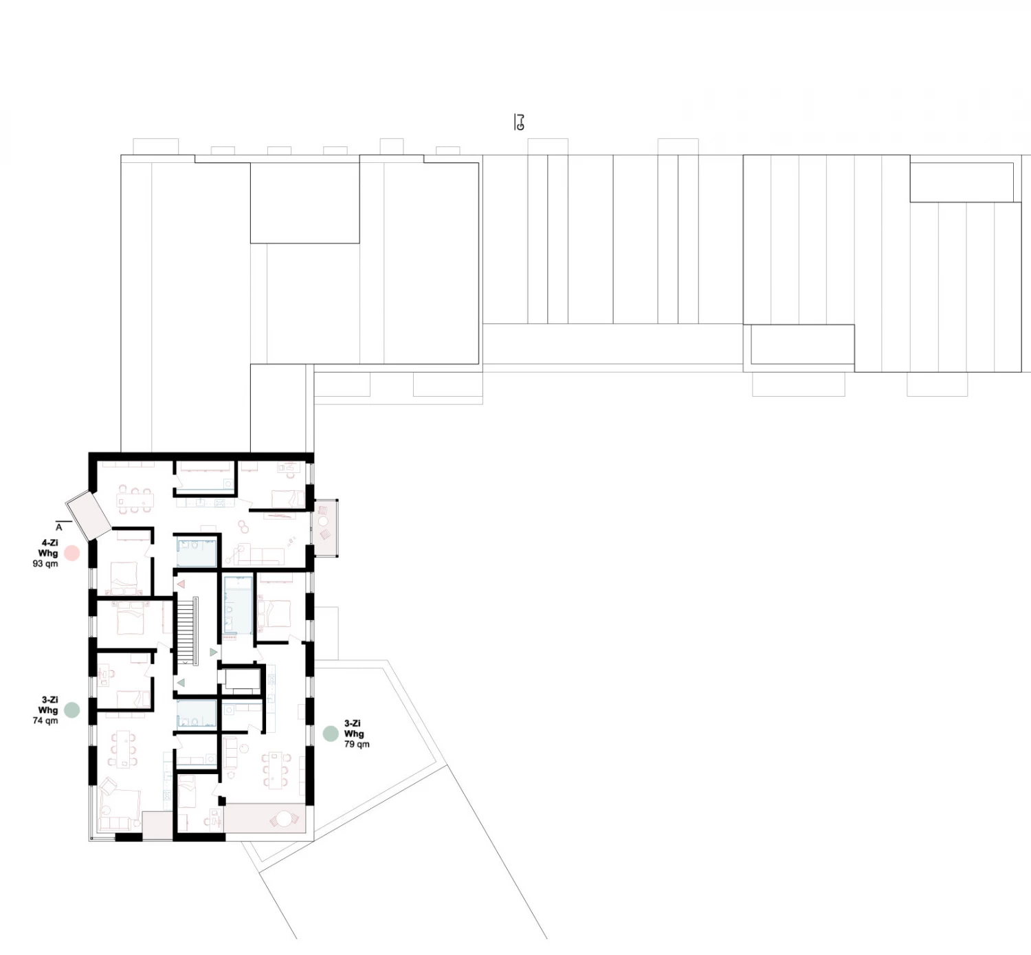
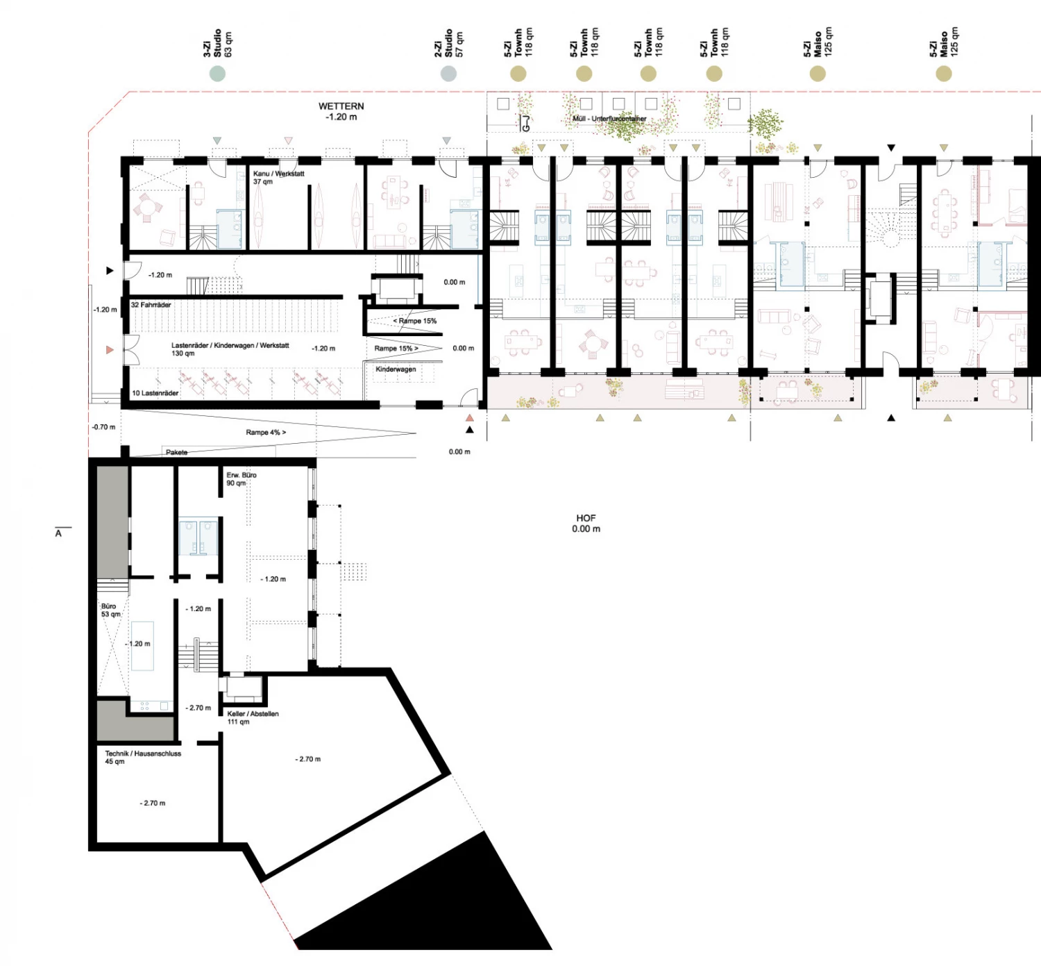
Wie sieht das Wohnen in Gemeinschaft aus? Welche Baustrukturen fördern das Zusammenleben? Und wie entsteht eine funktionierende Nachbarschaft an einem Ort, der noch wachsen muss? Diesen Fragen stellt sich die Baugemeinschaft Inselkiez, die im nordöstlichen Teil des neuen Elbinselquartiers in Hamburg-Wilhelmsburg vier Gebäude mit rund 60 Wohnungen errichtet.

Die Baugemeinschaft besteht aus einer Gruppe junger und junggebliebener Menschen, die aus beruflichen und privaten Gründen nach Hamburg gezogen ist. Das Ziel ist es, gemeinschaftlich in einem Umfeld zu leben, das sie mitgestalten und in dem sie als verbundene Gemeinschaft wohnen können.

Um die Vielfalt der künftigen Bewohnerschaft baulich widerzuspiegeln, sind die Neubauten in unterschiedlichen Typologien und Bauweisen geplant:
So variieren die künftigen Wohnräume von einer kleinteiligen Bebauungsstruktur Richtung Wettern zwischen paarweise gestapelten Townhouses in Holzbauweise und einem Mehrfamilienhaus mit flexibel zuschaltbaren Zwischenzimmern, die sowohl gemeinschaftlich als auch als zusätzliche Räume einzelner Wohnungen dienen. Ein urbaner Hochpunkt, der Wohnturm, schließt den westlichen Teil der Bockrandbebauung ab und bietet neben unterschiedlichen Wohnungsgrößen, Gewerbe-, Gemeinschaftsflächen und ein Co-Working-Space im Erdgeschoss, die sich zum Quartier und zur belebten Jaffestraße öffnen.

Die unterschiedlichen Typologien der Bauten sind auf Fassadenebene durch variierende Fassadengestaltungen und unterschiedliche Dachformen ablesbar. Die Materialien fügen sich harmonisch in die Umgebung einfügen und unterstreichen die Vielfalt des Projekts.

Die Baugemeinschaft Inselkiez sucht noch weitere Mitglieder. Weitere Informationen sind auf www.inselkiez.de verfügbar.

Projekt

Neubau von 60 Eigentumswohnungen in vier Gebäuden in unterschiedlichen Bauweisen

Standort

Hamburg-Wilhelmsburg

Planung

seit 2023

Größe

ca. 8.000 m² BGF

Kooperation

LOKI Architektur

Bauherr

Baugemeinschaft Inselkiez GbR

Visualisierung

LT A & LOKI Architektur

Pläne